- 2026/03/02
- 【ご商談中】 レーベンリヴァーレフォートヴィル
- 2026/02/05
- 2月14日(土)~2月15日(日)・ 2月20日(金)~2月23日(月)のご案内 🏠
- 2026/02/05
- 【ご商談中】 レフィナード嵐山 (セカンドハウス・別荘利用おすすめ)
- 2026/01/14
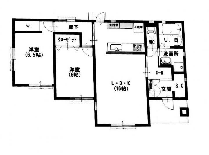
- 【新着物件】 駅東口再開発エリア『プラウド宇都宮』8階約73㎡。
- 2025/12/29
- 【冬季休業のお知らせ】誠に勝手ながら、12月30日~1月7日まで休業とさせて頂きます。
株式会社 宇都宮協同不動産
〒320-0827 宇都宮市花房2丁目2-6
予約制 じっくり丁寧に、
ご対応したいので、
必ず事前にご予約を
いただいております。
メールか電話で、
まずはご連絡ください。

宅建免許番号:栃木県知事(2)第 5040 号





